język polskijęzyk angielskijęzyk niemieckijęzyk hiszpańskijęzyk włoskijęzyk francuskijęzyk rosyjskijęzyk ukraiński

ZNAJDŹ OFERTĘ

EstateDealer.pl / Lokale Wynajem / Kraków / Bronowice Małe / Lokal na wynajem Kraków Bronowice Małe 126m2
Kraków, Bronowice Małe LOKAL WYNAJEM symbol 1050/4766/OLW

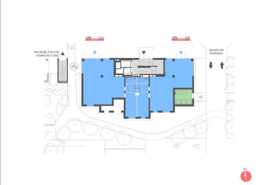
Do wynajęcia lokal usługowy w Krakowie - w budynku położonym w nowo powstałym Osiedlu KRK ul. Stańczyka.
Budynek o reprezentacyjnym wyglądzie z lokalami o charakterze handlowo-usługowym na parterze oraz z mieszkaniami na wyższych kondygnacjach

Kraków*Krowodrza*Bronowice*Bronowicka*Stańczyka*

Opis lokalu:
- lokal w stanie developerskim, posiada 2 wejścia i przestronne witryny na obie strony osiedla od ul. Stańczyka oraz G. Zapolskiej
- powierzchnia lokalu 126,42 m2, wysokość 326cm
- lokal posiada zgodę na alkohol, reklamę i klimatyzatory, jest wyposażony we wszystkie niezbędne instalacje, ogrzewanie MPEC,
- idealne pod gabinety lekarskie, klinikę, kosmetykę, małą gastronomię, sklep
- obok dostępny również drugi lokal o pow. 120,44 m2, możliwość połączenia obu lokali

Lokalizacja:   
• 200 metrów od przystanku tramwajowego oraz autobusowego, 
• dojazd do Rynku Głównego zajmuje 8 minut tramwajem,
• w pobliżu wszystkie istotne centra biurowe oraz UJ, Politechnika, AGH, UEK oraz Uniwersytet 
Pedagogiczny, który znajduje się 10 minut pieszo,
• bardzo dobrze rozbudowana infrastruktura, w pobliżu liczne sklepy, restauracje, przedszkola, żłobki, punkty usługowe

Warunki najmu:
- stawka czynszu najmu 85 zl netto/m2 + media według zużycia
- 2 miejsca postojowe naziemne w cenie czynszu najmu
- wakacje czynszowe do uzgodnienia
- umowa na min 5 lat

Kontakt:
tel. 530640497
 

Treść niniejszego ogłoszenia nie stanowi oferty handlowej w rozumieniu Kodeksu Cywilnego. Treść ma charakter informacyjny i zalecamy ich osobistą weryfikację. Kontaktując się z biurem Klient wyraża zgodę na przetwarzanie danych osobowych zgodnie z przepisami ustawy z dnia 29 sierpnia 1997 roku o ochronie danych osobowych / Dz.U.Nr. 133 poz. 883/. Klientowi przysługuje prawo do wglądu do swoich danych osobowych i ich aktualizacji.

Symbol
1050/4766/OLW
Rodzaj nieruchomości
LOKAL
Rodzaj transakcji
WYNAJEM
Status
oferta aktualna
Nieruchomość dostępna od
30.11.2022
Cena cena w innych walutach
10 745, 70 PLN
Cena za m2
85, 00 PLN
Kraj
POLSKA
Województwo
MAŁOPOLSKIE
Miejscowość
Kraków
Dzielnica - osiedle
Bronowice Małe
Ulica
ul. Stańczyka
Powierzchnia całkowita
126, 42 m²
Rodzaj budynku
BLOK
Rok budowy
2022
Materiał ścian
<
Parter
Ilość pięter
11
Winda w nieruchomości
Stan budynku
IDEALNY
Okres płatności (il.miesięcy)
60

doradca odpowiedzialny za ofertę

Horizon Realty Group

Horizon Realty Group




tel.: +48503756519
office@horizonrealty.pl

pozostałe oferty doradcy »