język polskijęzyk angielskijęzyk niemieckijęzyk hiszpańskijęzyk włoskijęzyk francuskijęzyk rosyjskijęzyk ukraiński

ZNAJDŹ OFERTĘ

EstateDealer.pl / Lokale Wynajem / Kraków / Centrum / Lokal na wynajem Kraków Centrum 247m2
Kraków, Centrum LOKAL WYNAJEM symbol 1081/EST/LW

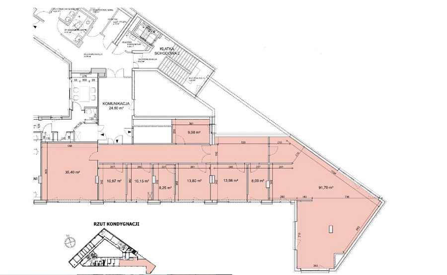
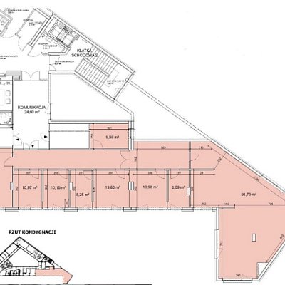
Do wynajęcia lokal biurowy lub usługowy w centrum Krakowa – 247 m²

Oferujemy do wynajęcia wyjątkowy lokal usługowy o powierzchni 247 m², zlokalizowany w nowoczesnym biurowcu w samym sercu Krakowa, idealnie nadający się pod biuro, gabinet medyczny lub inną działalność usługową. Nieruchomość znajduje się na 5. piętrze budynku z 2012 roku, wyposażonego w liczne udogodnienia, zapewniające komfort pracy i działalności gospodarczej.

Lokalizacja:

Lokalizacja w centrum Krakowa, w pobliżu Dworca Głównego, to niewątpliwie jeden z największych atutów tej nieruchomości. Bliskość jednego z najważniejszych węzłów komunikacyjnych w mieście gwarantuje doskonały dostęp do środków transportu publicznego. Stąd można szybko dostać się do każdej części miasta, korzystając z pociągów SKM, licznych linii tramwajowych i autobusowych oraz rozbudowanych ścieżek rowerowych.

W bliskiej odległości znajdują się również znane miejsca takie jak Forty Kleparz i Park Kleparski, które oferują możliwość rekreacji i odpoczynku w wolnych chwilach. Dzielnica ta, znana z doskonałej infrastruktury, zapewnia dostęp do licznych restauracji, kawiarni, sklepów oraz usług medycznych i edukacyjnych. Lokalizacja w ścisłym centrum Krakowa to także prestiżowy adres, który przyciąga zarówno klientów indywidualnych, jak i biznesowych.

Nieruchomość:

Lokal o powierzchni 247 m² usytuowany na 5. piętrze nowoczesnego biurowca jest idealny pod biuro, gabinet medyczny, kosmetyczny lub inną działalność usługową. W budynku znajdują się już liczne gabinety z zakresu medycyny, kosmetologii, psychoterapii oraz psychiatrii, co czyni ten obiekt szczególnie atrakcyjnym dla branży medycznej i usługowej.

Specyfikacja lokalu:

  • Powierzchnia: 247 m², 5. piętro.
  • Klimatyzacja: Lokal jest w pełni klimatyzowany, zapewniając komfort pracy przez cały rok.
  • Okna: Możliwość otwierania okien w większości pomieszczeń.
  • Reklama: Możliwość darmowej reklamy na pylonie przy wejściu do biurowca.
  • Parking: Do dyspozycji najemcy są miejsca postojowe zarówno na zewnątrz, jak i w garażu podziemnym. Koszt wynajmu miejsca postojowego wynosi 350 zł netto miesięcznie.

Koszty najmu:

  • Czynsz bazowy: 15 EUR netto za m²/miesiąc.
  • Koszty eksploatacyjne: 18,50 zł netto za m²/miesiąc.
  • Powierzchnia wspólna: Do powierzchni lokalu doliczamy 4% na części wspólne.
  • Media: Opłaty według zużycia, rozliczane na podstawie liczników.
  • Kaucja: Standardowo równowartość 3-miesięcznego czynszu netto lub gwarancja bankowa.

Preferencje najmu:

Preferowany jest najem długoterminowy (minimum 3 lata), co zapewnia stabilność zarówno dla najemcy, jak i wynajmującego.

Dlaczego warto wynająć ten lokal?

  • Prestiżowa lokalizacja w ścisłym centrum Krakowa.
  • Doskonała komunikacja – w pobliżu Dworzec Główny, linie tramwajowe, autobusowe, SKM oraz ścieżki rowerowe.
  • Nowoczesny budynek z 2012 roku, idealny pod działalność usługową lub medyczną.
  • Dostęp do miejsc parkingowych oraz możliwość darmowej reklamy.

Zapraszamy do kontaktu i umówienia się na prezentację. To doskonała okazja, by wynająć lokal w prestiżowej lokalizacji, z idealnym dostępem do wszystkich udogodnień centrum Krakowa!

Treść niniejszego ogłoszenia nie stanowi oferty handlowej w rozumieniu Kodeksu Cywilnego. Treść ma charakter informacyjny i zalecamy ich osobistą weryfikację. Kontaktując się z biurem Klient wyraża zgodę na przetwarzanie danych osobowych zgodnie z przepisami ustawy z dnia 29 sierpnia 1997 roku o ochronie danych osobowych / Dz.U.Nr. 133 poz. 883/. Klientowi przysługuje prawo do wglądu do swoich danych osobowych i ich aktualizacji.

Symbol
1081/EST/LW
Rodzaj nieruchomości
LOKAL
Rodzaj transakcji
WYNAJEM
Status
oferta aktualna
Nieruchomość dostępna od
09.09.2024
Cena za m2 w EURO
15, 00 €
Kraj
POLSKA
Województwo
MAŁOPOLSKIE
Powiat
krakowski
Gmina
Kraków
Miejscowość
Kraków
Kod pocztowy
31-403
Dzielnica - osiedle
Centrum
Powierzchnia całkowita
247, 00 m²
Powierzchnia użytkowa
247, 00 m²
Rodzaj budynku
BIUROWIEC
Rok budowy
2012
Standard
BARDZO DOBRY
Winda w nieruchomości
Ilość wind
2
Udogodnienia dla inwalidów
Stan budynku
BARDZO DOBRY
Okres płatności (il.miesięcy)
12

doradca odpowiedzialny za ofertę

Anastasiia Putivskaia

Anastasiia Putivskaia

tel.: 530 667 317
a.putivskaia@horizonrealty.pl

pozostałe oferty doradcy »