język polskijęzyk angielskijęzyk niemieckijęzyk hiszpańskijęzyk włoskijęzyk francuskijęzyk rosyjskijęzyk ukraiński

ZNAJDŹ OFERTĘ

EstateDealer.pl / Obiekty Wynajem / Kraków / Prądnik Biały / Obiekt na wynajem Kraków Prądnik Biały 314m2
Kraków, Prądnik Biały OBIEKT WYNAJEM symbol 33/4766/OOW
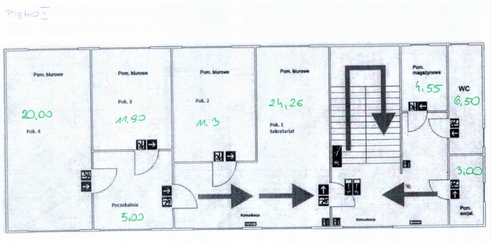
Do wynajęcia lokale biurowe w dwupiętrowym budynku, o łącznej powierzchni 314 m2, który znajduje się na Prądniku Białym.
Oferowana przestrzeń składa się z:
* sali konferencyjnych,
* gabinetów,
* kuchni,
* toalet,
* pomieszczeń socjalnych i sanitarnych
* recepcji i poczekalni.

LOKALIZACJA:
Budynek zlokalizowany jest w dobrze skomunikowanej części miasta. W pobliżu znajduje się przystanek autobusowy oraz pętla tramwajowa, co pozwala w szybki i łatwy sposób dostać się w każdą część miasta. Na korzystne usytuowanie nieruchomości wpływa również niedaleka odległość od autostrady.

INFORMACJE DODATKOWE:
* W cenę najmu wliczone zostało 18 miejsc parkingowych + jest możliwość rezerwacji większej ilości miejsc za dodatkową opłatą.
* Budynek po modernizacji.
* Budynek wolny od zaraz.
* Możliwość wynajęcia z meblami.
* Obok znajduje się druga, większa część budynku, która również będzie do wynajęcia.

CENA: 9263 zł / miesiąc + vat.
Koszty eksploatacyjne i media ok. 1000 zł.

Treść niniejszego ogłoszenia nie stanowi oferty handlowej w rozumieniu Kodeksu Cywilnego. Treść ma charakter informacyjny i zalecamy ich osobistą weryfikację. Kontaktując się z biurem Klient wyraża zgodę na przetwarzanie danych osobowych zgodnie z przepisami ustawy z dnia 29 sierpnia 1997 roku o ochronie danych osobowych / Dz.U.Nr. 133 poz. 883/. Klientowi przysługuje prawo do wglądu do swoich danych osobowych i ich aktualizacji.

Symbol
33/4766/OOW
Rodzaj nieruchomości
OBIEKT
Rodzaj transakcji
WYNAJEM
Status
oferta aktualna
Rodzaj rynku
WTÓRNY
Nieruchomość dostępna od
09.10.2020
Cena cena w innych walutach
9 263, 00 PLN
Cena za m2
29, 50 PLN
Kraj
POLSKA
Województwo
MAŁOPOLSKIE
Miejscowość
Kraków
Dzielnica - osiedle
Prądnik Biały
Ulica
Białoprądnicka
Powierzchnia całkowita
314, 00 m²
Rodzaj budynku
BIUROWIEC
Rok budowy
1980
Materiał ścian
<
Rodzaj nawierzchni
ASFALTOWA / KOSTKA
Parter
Energia elektryczna
Napięcie 400V (siła)
Podłączony wodociąg
Klimatyzacja
Wentylacja
Alarm
Ochrona
Monitoring
Ogrodzenie
PEŁNE
Komunikacja miejska
w pobliżu
Stan budynku
DOBRY

doradca odpowiedzialny za ofertę

Horizon Realty Kraków

Horizon Realty Kraków




tel.: 503756519
office@horizonrealty.pl

pozostałe oferty doradcy »